Exhibit 10.20
Lease Agreement
BY AND BETWEEN
Westland Development Services, Inc.
(“Landlord”)
AND
(“Tenant”)
Sonoma Pharmaceuticals, Inc.
| 1 |
This Lease Agreement (“Lease”) is made effective as of February 19, 2021, by and between WESTLAND DEVELOPMENT SERVICES, INC., A COLORADO CORPORATION (“Landlord”), and Sonoma Pharmaceuticals, Inc. , A Delaware Corporation (“Tenant”). For valuable consideration, the Landlord and Tenant agree as follows:
| 1. | Premises. | |
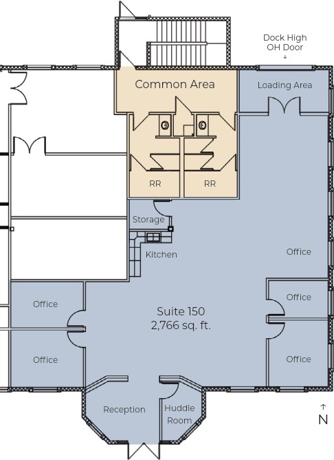
| 1.1. | Premises. Subject to the terms and conditions of this Lease, Landlord hereby leases and delivers unto Tenant, and Tenant hereby leases and accepts from Landlord, the following space located in that certain commercial building at 5445 Conestoga Court, Boulder, Colorado 80301 (“Building”), consisting of approximately 2,766 rentable square feet (“Rentable Square Feet”) in Unit No 150 and generally depicted in attached Exhibit A (“Premises”). Tenant acknowledges and agrees that the Rentable Square Feet of the Premises is a reasonable, good faith approximation that shall be deemed conclusive and binding on Landlord and Tenant during the Term (defined below) of this Lease. | |
| 1.2. | Common Areas. In addition to the Premises, Landlord hereby grants to Tenant a non- exclusive right and license to use, in common with other tenants of the Building, the various appurtenant public and/or common areas of the Building that are generally available for use by all tenants (“Common Areas”). Such Common Areas include all portions of the Building intended for shared use in common with others, including outdoor parking areas, driveways, truck and delivery areas, loading zones, landscaped areas, entryways and exits, exterior lighting, sidewalks and ramps, interior hallways, stairs, elevators, restrooms and lobby areas, and all other common elements of the Building, including utility systems and equipment serving the Building. | |
| 2. | Landlord Improvements. | |
| 2.1. | Commencing upon and subject to all terms and conditions of this Lease, Landlord, at its expense, shall cause all posters and art to be removed and the holes patched and painted so that the walls look clean and professional in the reasonable view of the Tenant, the boarded up area will be completed and the existing wood matched as best as possible so that it is reasonably acceptable to Tenant, and the Premises to be professionally cleaned and sanitized pursuant to national Covid standards. If Tenant would like to keep the fridge it will need to be purchased from Chef Ann/Boulder County Farmer’s Market. The other appliances will be provided with the lease. | |
| 3. | TERM. | |
| 3.1. | Commencement and Term. The terms and provisions of this Lease shall commence and be in full force and effect upon the Parties’ execution of this Lease. As of March 1, 2021 the Initial Term of this Lease shall commence (“Commencement Date”). Such Initial Term shall commence on the Commencement Date and continue for thirty-six (36) calendar months thereafter (“Term” or “Initial Term”), unless earlier terminated according to other provisions of this Lease. The Tenant’s obligation to pay Base Rent and Operating Expenses (defined in Section 4 below) shall begin on the Commencement Date and end on January 31, 2024. |
3.1(a) Holding Over. In the event Tenant remains in possession of all or any part of the Premises after the Expiration Date without a Renewal Term Amendment, then Tenant’s occupancy of the Premises shall be deemed a month-to-month tenancy at sufferance, subject to all terms and conditions of this Lease; except that Base Rent payable during such month- to-month tenancy shall be one hundred fifty percent (150%) of the Base Rent due and payable immediately prior to the Expiration Date. Such month-to-month tenancy may be terminated by either Party upon delivery of twenty-one (21) calendar days written notice. Notwithstanding anything to the contrary set forth herein, any holdover without Landlord’s consent shall be deemed an Event of Default entitling Landlord to exercise all rights and remedies set forth in Section 16 below.
| 2 |
| 4. | RENT. | |
| 4.1. | Base Rent. During the first twelve (12) months of the Initial Term, Tenant shall pay to Landlord base annual rent for the Premises (“Base Rent”) as follows: |
4.1(a) Three thousand five hundred seventy two and 75/100 dollars ($3,572.75) per month from February 15, 2021 to January 31, 2022;
4.1(b) Three thousand six hundred seventy nine and 93/100 dollars ($3,679.93) per month from February 1, 2022 to January 31, 2023;
4.1(c) Three thousand seven hundred ninety and 33/100 dollars ($3,790.33) per month from February 1, 2023 to January 31, 2024;
| 4.2. | Payment of Rent. |
4.2(a) Base Rent Installments are due and payable in good and immediately available funds in advance, without notice or demand and without any set-off or deduction, on the first (1st) business day of each calendar month during the Term; provided, however, that the Base Rent and operating expenses Installment pro rated for the first (1st) calendar month of this Lease in the amount of Five thousand two hundred and 8/100 ($5,200.08) shall be due and payable upon lease execution.
4.2(b) In the event Landlord does not receive a Base Rent Installment or an Operating Expenses Installment (defined below) by the close of the third (3rd) business day in any calendar month, Tenant shall pay a late fee equal to five percent (5%) of the aggregate amount past due. Tenant shall pay such late fee immediately or Landlord may withdraw and apply the same from Tenant’s Security Deposit (defined below). In the event of any returned check for insufficient funds, or any check that is not otherwise paid upon presentment, Tenant shall pay a returned check fee of $25.00 in addition to any bank fee or charge incurred for any returned check. Tenant acknowledges that such late fees and returned check charges are not unreasonable.
4.2(c) Tenant’s obligation to pay Base Rent Installments and Operating Expenses Installments are separate and distinct independent covenants and agreements, and such obligations are separate from and in addition to Tenant’s other obligations under this Lease.
| 5. | Operating Expenses. | |
| 5.1. | Tenant’s Pro Rata Share. In addition to Base Rent, Tenant shall also pay to Landlord, without any set-off or deduction, Tenant’s Pro Rata Share of Operating Expenses applicable to Landlord’s operation and management of the Building and Common Areas. For purposes of this Lease, “Tenant’s Pro Rata Share” shall be equal to the fraction, the numerator of which shall equal the Rentable Square Feet of the Premises, and the denominator of which shall equal the aggregate rentable square feet of all units in the Building. As of the date hereof, Tenant’s Pro Rata Share is equal to 14.91%. For the calendar year 2020, Operating Expenses for the Building are estimated to be approximately $7.06 per square foot annually, but that is only an estimate. The 2021 estimate will be provided by April 1, 2021. |
| 3 |
| 5.2. | Operating Expenses. For purposes of this Lease, “Operating Expenses” shall mean and include all costs and expenses incurred by Landlord in the course of owning, operating, managing, maintaining, repairing and insuring the Building and Common Areas, including: |
5.2(a) real property taxes and assessments levied against the Building or Common Areas by any governmental authority having jurisdiction, including any tax, assessment, surcharge, or levy presently in effect or hereafter levied on the use, occupancy, improvement, ownership or operation of the Building or Common Areas (“Real Estate Taxes”) including any expense in retaining tax consultants to contest the amount or validity of any such Real Estate Taxes;
5.2(b) expenses incurred by Landlord in connection with operating, maintaining and repairing the Building and Common Areas, including maintenance, repair, replacement and operation of: (i) mechanical, electrical, plumbing, sewer, HVAC, life safety, hydraulic, security, and related systems and appurtenances serving the Building or Common Areas; (ii) parking areas, sidewalks, paved surfaces, landscaped areas, exterior and roof of the Building; (iii) lighting including the cost of replacement bulbs, ballasts and fixtures; (iv) carpet, painting, cleaning and upkeep of Common Areas; (v) janitorial service, window cleaning, snow removal and landscape maintenance, trash removal and recycling; and (vi) labor, equipment, sevices and materials used in connection with the foregoing;
5.2(c) expenses incurred in connection with the supply of energy and utilities for the Building and Common Areas, including natural gas, electricity, solar, other energy source, water, sanitary sewer and storm drainage services for the Building and Common Areas;
5.2(d) Landlord’s insurance premiums, including property damage, liability, fire and all-risk or multi-peril coverage, and loss of rent; the part of any claim required to be paid under the deductible portion of any insurance policy carried by Landlord for the Building; public liability and any other insurance carried by Landlord on the Building or as may be required by any mortgagee of the Building;
5.2(e) property and Building management fees currently equal to five percent (5%) of the aggregate gross rent payable under all leases related to the Building;
5.2(f) reasonable legal, accounting, inspection, and other professional fees (including fees for services intended to produce a reduction in Operating Expenses or to improve the efficient operation, maintenance or state of repair of the Building);
5.2(g) expenses of capital improvements including structural repairs and replacements made in or to the Building, in order to conform to changes (subsequent to the date of issuance of the certificate of occupancy for the Building) in any applicable laws, ordinances, rules, regulations, or orders of any governmental authority having jurisdiction over the Building (“Required Capital Improvements”), and the costs of any capital improvements and structural repairs and replacements that reduce Operating Expenses (“Cost Savings Improvements”); provided that, any expenditures for Required Capital Improvements and/or Cost Savings Improvements shall be amortized at a market rate of return over the useful life of such improvement, repair or replacement (determined by Landlord’s accountants); and further provided that the amortized amount of any Cost Savings Improvement in any calendar year will be roughly equal to the estimated reduction in Operating Expenses as a result thereof;
5.2(h) expenses incurred in connection with the design, installation, maintenance or repair of any monument signs or other signage for the Building.
| 4 |
5.2(i) “Operating Expenses” shall not include any of the following:
5.2(i)(i) expenses related to work that Landlord performs on behalf of other tenants for their respective units in the Building;
5.2(i)(ii) leasing commissions, advertising, and other expenses incurred with respect to leasing space in the Building;
5.2(i)(iii) expenses for repairs or other work occasioned by fire, windstorm or other insured casualty to the extent of insurance proceeds received;
5.2(i)(iv) costs of repairs or rebuilding necessitated by condemnation;
5.2(i)(v) costs or attorney’s fees incurred in connection with any dispute involving any other tenant or prospective tenant of the Building;
5.2(i)(vi) cost to repair any damage to the Building caused by Landlord;
5.2(i)(vii)fees or other compensation paid to any affiliate of Landlord for services for the Building, to the extent they exceed competitive costs for such services rendered by persons or entities of similar skill and experience who are not affiliates of Landlord;
5.2(i)(viii) other than as set forth in Section 4.2 above, the cost of structural repairs or reconstruction of any portion of the Building;
5.2(i)(ix) costs of providing utility service lines to the Building (standard core and shell) or repairing such lines if they break, other than due to acts or omissions of Tenant or its employees, agents, contractors or invitees;
5.2(i)(x) any interest on borrowed money or debt amortization, or costs incurred in connection with mortgage financing or refinancing of the Building, or incurred in connection with the sale of the Building or any change in the ownership of Landlord;
5.2(i)(xi) depreciation of the Building or any federal or state income tax on Landlord’s business.
5.2(j) Reimbursement of Operating Expenses. Annually during the Term, at or around the end of the first calendar quarter of each year, Landlord shall prepare and deliver to Tenant written notice of any changes in Landlord’s budget for estimated Operating Expenses for the next calendar year, as determined by Landlord in good faith. Tenant shall pay Tenant’s Pro Rata Share of such estimated Operating Expenses in equal monthly installments in advance without notice or demand and without set-off or deduction (the “Operating Expenses Installments”), each of which shall be due and payable on the first (1st) business day of each calendar month during the Term together with Base Rent Installments.
| 5 |
5.2(k) Reconciliation of Operating Expenses
.
5.2(k)(i) Annually during the Term, also around the end of the first calendar quarter of each year, Landlord shall deliver to Tenant a statement summarizing: (i) the actual Operating Expenses incurred for the preceding calendar year; (ii) Tenant’s Pro Rata Share including the aggregate Operating Expense Installments actually paid by Tenant during such calendar year; and (iii) the amount of any difference between Tenant’s Pro Rata Share of Operating Expenses and the aggregate Operating Expenses Installments actually paid by Tenant (the “Reconciliation Statement”). In the event that Tenant’s Pro Rata Share of actual Operating Expenses exceeds the aggregate Operating Expenses Installments actually paid by Tenant, Tenant shall pay any shortfall within thirty (30) calendar days after the receipt of the Reconciliation Statement. In the event that Tenant’s Pro Rata Share of actual Operating Expenses is less than the aggregate Operating Expenses Installments actually paid by Tenant, such overpayment shall either be: (x) applied by Landlord as a credit against Tenant’s Base Rent Installments and/or Operating Expenses Installments, until fully applied; or (y) at Landlord’s election, refunded to Tenant within thirty (30) calendar days after the date of the Reconciliation Statement.
5.2(k)(ii) Tenant shall have the right to review and verify the accuracy of the Reconciliation Statement, upon Tenant’s delivery of written notice to Landlord within 30-days after the date of the Reconciliation Statement (the “Operating Expenses Audit Notice”). In the event Tenant does not deliver an Operating Expenses Audit Notice within such 30- day period, Tenant shall be deemed to have waived its right to review and verify the accuracy of the Reconciliation Statement, which shall thereupon be deemed final, binding and conclusive. If Tenant timely issues such notice, then Tenant shall engage its own certified public accountants (“Tenant’s Accountants”) to conduct such review of the Reconciliation Statement, to be completed at Landlord’s offices within thirty (30) days after the date of the Operating Expenses Audit Notice. In the event Tenant’s Accountants determine in good faith that an error or discrepancy occurred in the Reconciliation Statement, Tenant shall deliver written notice of the same to Landlord, and thereafter Landlord’s Accountants and Tenant’s Accountants shall cooperate in good faith to attempt to resolve any such discrepancy, failing which the parties may submit such matter to an independent certified public accountant to be mutually selected by Landlord’s and Tenant’s Accountants. The determination of such independent accountant shall be final, conclusive and binding upon the parties, and the amount of any shortfall or overpayment shall be resolved in accordance with the terms and conditions set forth in Section 4.4(a) above. Notwithstanding any ongoing review of a Reconciliation Statement, Tenant shall continue to pay Landlord the amount of the Operating Expenses Installments that accrue under this Lease in accordance with the terms and conditions of this Lease.
| 6. | Security Deposit. | |
| 6.1. | Amount of Security. Landlord acknowledges receipt from Tenant of five thousand two hundred and no/100 dollars ($5,200.00) (“Security Deposit”) to be held by Landlord as collateral security, and not prepaid rent, for the full, faithful and timely performance by Tenant of all covenants, conditions and obligations in this Lease. Landlord may hold the Security Deposit in a separate deposit account, or may commingle the Security Deposit with Landlord’s other funds, but shall have no obligation to pay or account for any interest. The amount of the Security Deposit, less any amounts withheld or deducted, shall be repaid without interest to Tenant within sixty (60) calendar days after expiration or termination of this Lease, provided that no uncured Event of Default has occurred hereunder and provided that Tenant returns the Premises in the reasonably good physical condition required by this Lease. Landlord may from time to time draw upon and apply all or part of the Security Deposit as may be necessary to compensate Landlord for any Event of Default hereunder, including without limitation, any damage to the Premises. If the Security Deposit is applied for such purposes during the Term, then Tenant, promptly upon Landlord’s demand, shall pay to Landlord the amount required to restore the Security Deposit to its original amount. The Security Deposit shall not be deemed to be liquidated damages or a cap on damages related to any Event of Default. | |
| 6.2. | No Liability for Security Deposit upon Sale. In the event of a sale or transfer of Landlord’s estate or interest in the Building, and upon the delivery of prior written notice to Tenant specifying the name, address and contact information for the purchaser or transferee, Landlord shall have the right to transfer the Security Deposit to such purchaser or transferee, and upon such transfer Landlord shall thereupon be released by Tenant from all liability for the return of the Security Deposit. No mortgagee or purchaser of the Building at any foreclosure proceeding shall be liable to Tenant for any or all of such Security Deposit unless Landlord has actually delivered the same in cash or by credit to such mortgagee or purchaser, and if Landlord has not actually delivered the same in cash or by credit, Landlord shall remain liable to Tenant for the Security Deposit. |
| 6 |
| 7. | Use Of Premises; Hours. | |
| 7.1. | Use. The Premises shall be used and occupied by Tenant for adminstrative office purposes and related uses associated with shipping and receiving of dermatology, wound care and other Rx and OTC products. No other or different use shall be made of the Premises without the prior written consent of Landlord. Notwithstanding anything to the contrary set forth herein, the Premises shall not be used: (a) for any illegal purpose, or in violation of any regulation of any governmental authority, or contrary to the regulations or directives of Landlord’s insurance carriers; or (b) in any manner that interferes with the quiet enjoyment of the Building or Common Areas or any other tenant’s use of the Building. Tenant shall not conduct, suffer or permit any unlawful activity, or place any equipment in or about the Premises or Common Areas that may in any way increase the rate or cause the cancellation of fire insurance or other insurance on the Building. If any use of the Building, Premises or Common Areas by Tenant causes any such increase, then the full amount of such increase shall be included in Tenant’s Pro Rata Share of Operating Expenses. | |
| 7.2. | Prohibited Use. Tenant may not conduct any of the following uses in the Premises or Building: N/A. | |
| 7.3. | Building Hours. The Building hours of operation are 8:00 a.m. to 6:00 p.m. Monday through Friday and 8:00 a.m. to 1:00 p.m. on Saturdays, but not including customarily observed government and banking holidays such as New Year’s Day, Fourth of July, Thanksgiving Day, Christmas Day, e.g., or such other holidays as may be customarily established and observed. These are the hours when property management services will be available. | |
| 8. | Maintenance of Premises. | |
| 8.1. | Tenant’s Obligations. Tenant hereby accepts the Premises and all systems and equipment serving the Premises in their “as-is” condition and repair, and during the Term at Tenant’s sole cost and expense shall maintain the Premises in good working order, repair and condition, and, upon the Expiration Date or the effective date of any earlier termination of this Lease, shall surrender and deliver the Premises and all keys, locks and other fixtures in as good order, repair and condition as the Premises were on the Commencement Date, ordinary wear and tear excepted. Except as set forth in Section 8.2 below, Tenant acknowledges that Landlord shall have no obligation to perform such maintenance or replacements or otherwise make any repairs in or to the Premises. | |
| 8.2. | Landlord’s Obligations. Notwithstanding anything to the contrary set forth in Section 7.1 above, Landlord shall at its expense maintain the structural components of the Building Core and Shell, and the Common Areas, in good working order, repair and condition during the Term. | |
| 8.3. | Tenant Damage. Tenant shall be solely responsible for the costs and expenses associated with any maintenance, repair or replacement of any damaged part, item or component of the Building or Common Areas resulting from the acts or omissions of Tenant, its employees, agents, representatives or invitees. Tenant shall reimburse Landlord for the costs and expenses incurred by Landlord in connection therewith within thirty (30) days after Tenant’s receipt of Landlord’s invoice for the same. |
| 7 |
| 9. | Alterations By Tenant. | |
| 9.1. | Landlord Consent Requirement. Other than the Tenant Improvements, Tenant shall not make or permit any other improvements, additions, alterations, substitutions, replacements or modifications, structural or otherwise, to the Premises or Building (collectively, “Alterations”) without having first obtained the prior written consent of Landlord, which consent shall not be unreasonably withheld, conditioned or delayed; provided, however, that Landlord may withhold its consent to any Alterations that Landlord determines in good faith may: (a) adversely affect the structural integrity or safety of the Building; (b) adversely affect the electrical, plumbing, mechanical, sewer, HVAC, life safety or security systems of the Building; (c) be visible from the exterior of the Building or from any of the Common Areas; or (d) interfere with the operation of the Building or the provision of services or utilities to other tenants in the Building. Landlord may impose any reasonable conditions applicable to the Alterations it deems in good faith to be necessary, desirable or appropriate, including without limitation: (w) the approval of plans and specifications for the Alterations; (x) approval of contractors and subcontractors to perform work related thereto, including all insurance coverage carried by such contractors; (y) Landlord’s review of the progress of work and satisfactory evidence of Tenant’s ability to pay for such Alterations; and (z) the requirement that, prior to the Expiration Date or effective date of any earlier termination of this Lease, Tenant shall at its expense remove any Alterations and restore the Building or Premises as applicable. Tenant shall reimburse Landlord for any out-of-pocket expenses incurred in reviewing any requested consent to any proposed Alterations whether or not such consent is granted. Landlord shall have no liability related to any design, review, or performance of work, notwithstanding Landlord’s consent or approval of plans, for any Alterations. Upon reasonable prior notice and at reasonable times, Landlord shall have the right to enter the Premises and inspect the construction of any Alterations in the Premises and shall have the right to post notices of Landlord’s non-liability under applicable law, or to take any further action which the Landlord may deem to be proper for the protection of the Landlord’s interest in the Building and Premises. | |
| 9.2. | Construction. Alterations shall be constructed at Tenant’s sole expense in accordance with the plans and specifications approved in advance by Landlord. Tenant shall obtain all necessary permits and approvals required for construction of any Alterations and shall deliver copies of the same to Landlord prior to commencement of any such construction. The Alterations shall comply with all applicable laws, building codes, fire codes, insurance requirements and the provisions of this Lease. If any mechanic’s or materialman’s lien is threatened or filed against the Premises or the Building in connection with the construction of Alterations, Tenant shall, at its sole cost and expense, promptly obtain the release and discharge of such lien by paying off or bonding over such lien. | |
| 9.3. | Removal. In the event any Alterations are constructed without the prior written consent of Landlord, Landlord may require Tenant to correct or remove such Alterations at Tenant’s expense. | |
| 9.4. | Title. All Alterations installed or located in the Premises shall immediately become the property of Landlord, and shall remain upon and be surrendered to Landlord with the Premises upon the Expiration Date or the effective date of any earlier termination of this Lease, unless Landlord instructs Tenant to remove such Alterations and restore the Building and Premises. | |
| 10. | Utilities and Services. | |
| 10.1. | Building Standard Services. The following Building-standard services and utilities are available to serve the Premises: (a) domestic water and sanitary sewer; (b) heated or cooled air (as applicable) and standard usage electrical current; (c) the use of passenger elevators during regular building hours, if installed in the Building (available except in case of emergency or repair); and (d) Common Area janitorial and general maintenance services. Tenant acknowledges that Landlord shall have no responsibility whatsoever to supply, install, maintain or pay for any other or additional service(s) or utilities including data cabling, telephone or fibre optic lines, or electronic, communication, or other utility service to the Premises. |
| 8 |
| 10.2. | Additional Services. In the event Tenant requires additional services, supply, or utilites for the Premises, in addition to Building-standard services, Tenant shall be responsible for and pay directly all costs and expenses related to extending, connecting, supplementing or otherwise upgrading existing Building-standard core and shell system(s), unless such costs and expenses are allowed to be paid from any TI Allowance. Tenant acknowledges and agrees that Landlord shall have no obligation to incur costs or expenses for additional services or to perform any work related to supplements of upgrades as part of Landlord’s Work under this Lease. | |
| 10.3. | Interruption in Utility Service. Unless solely attributable to or caused by Landlord’s direct negligent act or omission, no interruption, curtailment, stoppage or suspension of Building utility service or system shall render Landlord liable in any respect for damages to person, property or business, nor shall the same be the basis for: (a) any abatement, reduction or rebate of Base Rent Installments or Operating Expenses Installments; (b) relieving Tenant from any of Tenant’s obligations hereunder; or (c) for any claim that Landlord constructively evicted or otherwise disturbed or interfered with Tenant’s use, possession or quiet enjoyment of the Premises. Notwithstanding the foregoing, Landlord shall upon receiving notice of any interruption exercise reasonable diligence to address and attempt to remedy any such interruption. | |
| 10.4. | Premises Utilities and Services. Landlord shall bill tenant monthly for its pro rata share of utilities that are not separately metered including gas, electricity, water, wastewater, telephone, communications, internet services, trash removal, recycling, composting and janitorial services. The Premises shall be separately metered such that Tenant shall separately contract with applicable local public authorities, utilities, or third-party vendors, as the case may be, for the furnishing of and payment for all utilities including gas, electricity, water, wastewater, telephone, communications and internet services, and including trash removal, recycling, and janitorial services specific to the Premises. Tenant shall directly pay for such utilities and services, including the establishment and connection of any telecommunications or internet service, at the rates charged by such authority, utility or third-party vendor. The failure of Tenant to obtain or to continue to receive such utilities or services for any reason shall not relieve Tenant of any of its obligations under this Lease, unless such failure is solely the result of Landlord’s direct negligent act or omission. Notwithstanding the foregoing, in the event Tenant fails to arrange for appropriate trash removal or janitorial services, or to maintain the Premises in good working order and condition, Landlord may contract for such services on Tenant’s behalf and Tenant shall pay the cost thereof as part of Tenant’s Pro Rata Share of Operating Expenses. | |
| 10.5. | Notice of Defects. Tenant shall deliver to Landlord prompt notice of any damage, accident or defect in the Building of which Tenant becomes aware, including leaks or defects in pipes or plumbing, electrical wiring, HVAC equipment, and any matter or condition which may cause injury or damage to the Building or any person or property therein. | |
| 11. | SIGNAGE. | |
| 11.1. | Tenant and Building Signage. Tenant shall have the right to be listed on existing signage for the Building. Landlord and Tenant shall coordinate regarding the design and installation of Tenant’s signage prior to installation of the same. Tenant’s sign design shall be at Tenant’s expense and comply with applicable local laws and ordinances. All signs shall be located in places approved by Landlord. The size and location of all Building signage must conform to all applicable laws and ordinances. Any and all permitted signs shall be installed and maintained by Tenant, at Tenant’s sole expense. | |
| 11.2. | No Other Signs. No other sign, advertisement or notice shall be inscribed, painted, affixed or displayed on the windows or exterior walls of the Premises or on any public area of the Building, unless approved in advance by Landlord. |
| 9 |
| 12. | Subletting or Transfer. | |
| 12.1. | Transfer by Tenant. Tenant shall not, without the prior written consent of Landlord: (a) assign or otherwise transfer this Lease or any rights hereunder; (b) sublet the Premises or any part thereof, or permit the use of the Premises or any part thereof by any third party other than Tenant and its employees, agents and invitees; (c) mortgage or encumber this Lease; or (d) permit the assignment or other transfer of this Lease or any of Tenant’s rights hereunder by operation of law (each, a “Transfer by Tenant”). For purposes of this Section 12 the merger or consolidation of Tenant into or with any other or different entity, or the sale of all or substantially all of Tenant’s assets, or the dissolution or reorganization of Tenant, shall be a Transfer by Tenant. Any Transfer by Tenant that is not in conformance with the terms and conditions set forth in this Section 12 may be voided by Landlord and enforced as an Event of Default. | |
| 12.2. | Landlord Consent Requirement. Tenant shall pay to Landlord an administrative fee in the amount of One Thousand Dollars ($1,000.00) and shall reimburse Landlord’s reasonable attorneys’ fees and other out-of-pocket expenses incurred in reviewing any documents related to a proposed Transfer by Tenant, whether or not such consent is granted. In granting or withholding consent to any proposed Transfer by Tenant, Landlord shall act in good faith and be entitled to consider any factors, including: (a) the financial strength and creditworthiness of any proposed subtenant/assignee; (b) the proposed use of the Premises by any proposed subtenant/assignee; (c) the requirements of any lender of Landlord for the Building; and (d) the risk factors and/or commercial reasonableness of any proposed business terms. | |
| 12.3. | Landlord Rights regarding Subleases and Assignments. |
12.3(a) In the event Tenant desires to sublet all or any portion of the Premises (the “Proposed Sublet Space”), Tenant shall provide written notice to Landlord and Landlord shall have the right to recover the Proposed Sublet Space and lease it directly to the proposed subtenant. In such event, the parties shall enter into an amendment to this Lease to reflect the reduction in the Rentable Square Feet, Base Rent, Operating Expenses and Tenant’s Pro Rata Share.
12.3(b) In the event Tenant proposes to assign and transfer this Lease, Landlord shall have the right to terminate this Lease and lease the Premises directly to the proposed assignee.
12.3(c) Landlord’s option to amend or terminate this Lease shall be exercisable by written notice to Tenant within thirty (30) days following Landlord’s receipt of written notice that Tenant desires to assign this Lease or to sublease any specified Proposed Sublet Space. If Landlord exercises such rights, then such amendment or termination shall be effective as of the effective date of any Landlord-approved assignment or subletting. If Landlord does not exercise its right to recover possession of the Proposed Sublet Space or to terminate this Lease, then Tenant shall be entitled to seek an acceptable subtenant for the Proposed Sublet Space, for a sublease term no longer than that set forth in Tenant’s notice.
12.3(d) Any proposed sublease shall be in a form acceptable to Landlord and shall incorporate all terms and conditions of this Lease. The consent by Landlord to any Transfer by Tenant shall not be construed as a waiver, release or discharge of Tenant from any obligation under this Lease, unless expressly agreed in writing by Landlord (it being understood that Tenant shall remain primarily liable as principal), nor shall the collection or acceptance of rent from any assignee, transferee, subtenant or occupant constitute waiver, release or discharge of Tenant. No consent by Landlord to any Transfer by Tenant in any one instance shall constitute a waiver of the need for Landlord’s consent thereafter.
12.3(e) To the extent that Tenant receives any amount of rent, value, or other consideration for the Premises, under any Transfer by Tenant involving a sublease, assignment, or other arrangement involving any subtenant, licensee, transferee, or occupant, which exceeds the amount of Base Rent reserved in this Lease, then Tenant shall pay fifty percent (50%) of such amount to Landlord as Additional Rent, payable to Landlord at the same time and manner required for the payment of Base Rent.
| 10 |
| 13. | Insurance. |
| 13.1. | Tenant’s Insurance. Tenant shall procure and maintain at its expense, at all times during the Term and any Renewal Term, the following minimum insurance coverage: |
13.1(a) Commercial general liability insurance endorsing and naming Landlord as additional insured, against any and all claims for bodily injury and/or property damage occurring in or about the Premises arising during the Term of Tenant’s use and occupancy of the Premises. Such insurance shall have combined single limit of not less than One Million Dollars ($1,000,000) per occurrence and not less than Two Million Dollar ($2,000,000) aggregate, and excess umbrella liability insurance of at least One Million Dollars ($1,000,000). Such liability insurance shall be primary and not contributing to any other insurance and in no event shall the limits of such insurance be considered as limiting the liability of Tenant;
13.1(b) Personal property insurance insuring all of Tenant’s equipment, trade fixtures, inventory, business personal property and other contents located in the Premises against all perils including special form (all risk) coverage. Such insurance shall be written on a replacement cost basis equal to one hundred percent (100%) of full insurable replacement value;
13.1(c) Workers’ compensation insurance as required by Colorado law, and business interruption coverage if desired by Tenant;
13.1(d) Such other insurance as Landlord deems commercially reasonable and necessary, or as may be required by Landlord’s beneficiaries or mortgagees under any deed of trust or mortgage encumbering the Building.
| 13.2. | Policy Requirements. |
13.2(a) Tenant’s insurance policies shall be issued by licensed and qualified insurers authorized to do business in the State of Colorado, and written certificates of insurance (certified copies of the policies may be required) including endorsements shall be delivered to Landlord prior to any occupancy by Tenant and annually thereafter;
13.2(b) Each policy of insurance shall require at least thirty (30) days prior written notice to Landlord regarding any cancellation or modification of coverage;
13.2(c) All insurance policies shall be endorsed with a subrogation clause, substantially as follows: “This insurance shall not be invalidated should the insured waive, in writing prior to any loss, any and all right of recovery against any party for loss occurring to the property described therein.” The parties to this Lease hereby waive claims for recovery from the other party for any loss or damage (whether or not caused by negligence of the other party, and notwithstanding anything to the contrary in this Lease) to any property insured under valid insurance policies of such party, to the extent of the collectible recovery under such insurance.
| 13.3. | Landlord’s Insurance. Landlord shall procure and maintain, as part of Operating Expenses payable by Tenant pursuant to Section 4 above, the following insurance coverage for the Building: |
13.3(a) Property insurance for the Building and improvements and covering all perils including special form (all risk) coverage. Such coverage shall be written on a replacement cost basis as determined by Landlord or otherwise as required by Landlord’s beneficiaries or mortgagees of any deed of trust or mortgage encumbering the Building;
13.3(b) Commercial general liability insurance against any and all claims for bodily injury and property damage occurring in or about the Building and Common Areas, in at least the minimum amounts required by Landlord’s beneficiaries or mortgagees of any deed of trust or mortgage encumbering the Building;
13.3(c) Such other insurance as Landlord deems necessary and prudent, or as may be required by Landlord’s beneficiaries or mortgagees of any deed of trust or mortgage encumbering the Building;
13.3(d) Tenant acknowledges that Landlord’s insurance does not cover in any respect, any of Tenant’s equipment, trade fixtures, inventory, business personal property or other contents located in the Premises.
| 11 |
| 14. | Liability of Landlord and Tenant. | |
| 14.1. | No Landlord Liability. Neither Landlord nor any of its employees, officers, managers, agents or representatives shall have any liability to Tenant, or to Tenant’s employees, officers, directors, managers, agents, contractors, subtenants, invitees or customers, for any damage, injury, loss, claim or demand based on or arising out of: (a) the repair or maintenance of any portion of the Premises, Building or Common Areas; (b) interruption in the use of the Premises, Common Areas or any equipment therein; (c) any accident or damage resulting from use or operation of elevators, HVAC, electrical, sewer, plumbing systems, and related equipment; (d) termination of this Lease by reason of damage to the Premises or the Building; (e) fire, robbery, theft, vandalism, mysterious disappearance or other casualty; (f) acts or omissions on the part of any other tenant of the Building or of any other person or entity; (g) interruption or disruption of any utilities or services otherwise contemplated elsewhere in this Lease; and (h) leakage in any part of the Premises, Building or Common Areas from wind, water, rain, ice or snow that may leak into or flow from any part of the Premises or the Building, or from drains, pipes or plumbing fixtures in the Premises, Building or Common Areas. Any property placed by Tenant in or about the Premises or Building shall be at the sole risk of Tenant, and Landlord shall not in any manner be responsible therefor. Notwithstanding the foregoing, Landlord shall not be released from liability to Tenant for and to the extent of any loss, injury or damage caused by Landlord’s willful misconduct or gross negligence. In no event, however, shall Landlord have any liability to Tenant for business interruption or loss to Tenant’s business or any indirect loss or consequential damage. | |
| 14.2. | Tenant Indemnification. Tenant shall reimburse Landlord for, and shall indemnify, protect, defend and hold Landlord, its employees, officers, managers, agents and representatives harmless from and against, any and all costs, damages, claims, demands, liabilities, expenses (including reasonable attorneys’ fees and costs), suffered by or claimed against Landlord, directly or indirectly, based on, arising out of, or related to: (a) Tenant’s use and occupancy of the Premises, Building or Common Areas; (b) any act or omission of Tenant, its employees, officers, directors, managers, agents, representatives, contractors, subtenants or invitees in the Premises, Building, or Common Areas; or (c) any Event of Default of Tenant hereunder. | |
| 14.3. | Limitation on Landlord Liability. Notwithstanding anything to the contrary set forth in this Lease, Tenant shall look solely to the estate of Landlord in and to the Building, in the event of any claim against Landlord arising out of this Lease. Tenant agrees that the liability of Landlord arising out of this Lease, the relationship of Landlord and Tenant, or Tenant’s use of the Premises, shall be limited to such estate of Landlord in and to the Building. No properties or assets of Landlord other than the estate of Landlord in and to the Building, and no property owned by any individual partner or shareholder of Landlord, shall be subject to any claim, demand, levy, execution or other enforcement, or for the satisfaction of any other remedy claimed by Tenant, arising out of or in connection with this Lease or Tenant’s use of the Premises. | |
| 15. | Damage or Destruction. | |
| 15.1. | Restoration of the Premises. If the Premises or any part thereof shall be damaged as a result of any casualty event, Tenant shall deliver prompt notice to Landlord. In the event Landlord has determined in good faith that the Premises can be restored to the condition required by this Lease within the nine (9) month period after the date of such casualty, Landlord shall commence the restoration of the Premises, provided Tenant shall make any available insurance proceeds available to Landlord in accordance with Tenant’s insurance obligations set forth in Section 12.1 above (subject to any prior rights of any Mortgagee in and to such proceeds). In addition, Tenant shall repair and restore, at Tenant’s sole expense, all Alterations in the Premises. If the Premises are unusable, in whole or in part, during such restoration, the Rent shall be proportionately abated to the extent and for the period that the Premises are unusable. Notwithstanding the foregoing, if any such casualty is the fault of Tenant or its employees, managers, agents, representatives, contractors or invitees, Tenant shall not be entitled to any abatement of Rent after a casualty event. |
| 12 |
| 15.2. | Termination of this Lease. If Landlord has determined in good faith that the Premises cannot be restored within the nine (9) month period after the date of such casualty, Landlord shall deliver to Tenant written notice of the same, and thereafter Landlord and Tenant shall each have the right to terminate this Lease upon the delivery of written notice to the other party within thirty (30) days after the date of Landlord’s notice to Tenant, in which event this Lease shall terminate as of the date of such casualty and the Rent and Operating Expenses shall be prorated and apportioned as of the date of such casualty. If neither party exercises such right of termination, the Premises shall be restored as provided in Section 15.1 above. | |
| 15.3. | Total Destruction. If the Building generally is so severely damaged by fire or other casualty (although the Premises may not be affected) that Landlord shall decide not to rebuild or reconstruct the Building, then this Lease and the tenancy hereunder shall terminate on the date specified by Landlord in a notice given within thirty (30) days after the date of such casualty. | |
| 16. | Condemnation. | |
| 16.1. | Complete Taking. If the whole of the Premises shall be lawfully condemned or taken in any manner for any public use, this Lease and the tenancy hereby granted shall cease and terminate as of the date of vesting of title in the condemning authority. If only part of the Premises shall be so condemned or taken, then, effective at the vesting of title in the condemning authority, the Base Rent Installments and Operating Expenses Installments shall be abated in proportion to the area of the Premises so condemned or taken. If only a part of the Building shall be condemned or taken and the remainder, in Landlord’s reasonable judgment, requires substantial reconstruction or is no longer economically suitable for rental (whether or not the Premises shall be affected), the Landlord may, at Landlord’s option, terminate this Lease and the tenancy hereby granted as of the date of such vesting of title, by notifying Tenant in writing of such termination within thirty (30) days following the date on which Landlord shall receive notice of vesting of title. | |
| 16.2. | Partial Taking. If such condemnation or taking materially deprives Tenant of: (i) access to the Premises and Landlord shall not have provided or undertaken steps to provide other means of access; or (ii) the use of more than thirty percent (30%) of the Rentable Square Feet of the Premises, Tenant may, at Tenant’s option, by delivery of notice in writing to Landlord within sixty (60) days following the date on which Tenant shall have received notice of vesting of title, terminate this Lease and the tenancy hereby granted as of the date of vesting of title. If neither Landlord nor Tenant elects to terminate this Lease, this Lease shall be and remain unaffected by such condemnation or taking, except that the Rent shall be abated in proportion to and to the extent of any condemned portion. If only a part of the Premises shall be condemned or taken and this Lease is not terminated, Landlord shall, with reasonable diligence and at its expense, structurally restore the remaining portion of the Premises to substantially the same condition as it was prior to such condemnation or taking. | |
| 16.3. | Condemnation Award. In the event of any condemnation or taking of all or a part of the Building or the Premises, Landlord shall be entitled to receive the entire award, including any award made for the lost value of the Lease and estate granted. Tenant hereby expressly assigns to Landlord any and all right, title and interest of Tenant now or hereafter arising in and to any such award, and Tenant shall be entitled to receive no part of such award. Notwithstanding, in any such condemnation proceeding Tenant may submit a separate claim, if allowable as such, against the condemning authority for Tenant’s claimed damages, so long as any award made to Tenant does not reduce the award otherwise payable to Landlord. |
| 13 |
| 17. | DEFAULT. | |
| 17.1. | Event of Default. Any of the following shall constitute an event of default (“Event of Default”) under this Lease: |
17.1(a) If Tenant shall fail to pay any amount due under this Lease on the applicable due date, and such payment default shall remain uncured for three (3) business days thereafter.
17.1(b) If Tenant shall fail to observe or perform any of the covenants, conditions and agreements of this Lease to be performed by Tenant, and such failure shall continue in whole or in part during the thirty (30) calendar day period after notice to Tenant; provided, however, that if such failure is not reasonably capable of being cured within such thirty (30) day period, then the cure period may be extended for up to sixty (60) days total, provided that Tenant has promptly commenced and diligently pursues appropriate cure.
17.1(c) If Tenant or any guarantor of this Lease shall: (a) make an assignment for the benefit of creditors; (b) acquiesce in a petition in any court in bankruptcy, reorganization, liquidation or insolvency proceedings; (c) seek, consent to, or acquiesce in the appointment of any trustee, receiver or liquidator of Tenant or of all or any part of Tenant’s assets; (d) file a petition seeking an order for relief under the Bankruptcy Code, as now or hereafter amended or supplemented, or by filing any petition under any other present or future federal, state or other statute or law for the same or similar relief; or (e) fail to win the dismissal, discontinuation or vacating of any involuntary bankruptcy proceeding within sixty (60) calendar days after such proceeding is initiated.
17.1(d) Any amounts unpaid hereunder for more than thirty (30) calendar days after the due date shall bear interest until paid at the rate of one and one-half percent (1.5%) per month from the date of default until paid in full, and such interest shall be due and payable on the due date for the next succeeding Base Rent Installment.
| 17.2. | Remedies. If an Event of Default occurs, and is not timely cured by Tenant in full, then Landlord may do any of the following at its option: |
17.2(a) Terminate this Lease by written notice to Tenant, whereupon this Lease shall end and all rights of Tenant hereunder shall expire and terminate, and everything herein required on the part of Landlord to be done and performed shall cease, but Tenant shall remain liable as provided below.
17.2(b) With or without terminating this Lease, Landlord may enter upon and take possession of the Premises and remove Tenant and any other person who may be occupying the Premises or any part thereof, without being liable for damages or liability for such entry. Landlord may make such commercially reasonable alterations and repairs as, in Landlord’s absolute discretion, may be necessary to relet the Premises, and may relet the Premises or any part thereof, without notice to Tenant, for such rent and for such use, and for such period of time and subject to such terms and conditions as Landlord, in its absolute discretion, may deem advisable, and receive the rent therefor. Tenant shall pay to Landlord, on demand, any deficiency that may arise by reason of any such reletting, and shall be liable for any and all expenses (including attorneys’ fees, brokerage fees, and all re-letting costs) incurred by Landlord in reentering and repossessing the Premises, in making good any default of Tenant, in painting, altering, repairing, dividing or demising the Premises, in protecting and preserving the Premises, and reletting the Premises. Tenant shall remain liable to Landlord for the sum of all Base Rent Installments and Operating Expenses Installments contracted- for under this Lease, as the measure and benefit of Landlord’s bargain. Landlord shall not be liable for any failure to relet the Premises or any part thereof or for any failure to collect any rent due upon any such reletting. Notwithstanding, Landlord agrees to pursue reletting of the Premises with commercially reasonable diligence, and Landlord may at any time thereafter elect to terminate this Lease for such prior default.
17.2(c) If Landlord elects to terminate this Lease pursuant to Section 17(a) above, Landlord shall nevertheless be entitled to recover from Tenant, and Tenant shall pay to Landlord on demand, as liquidated damages for Tenant’s default, an amount equal to the difference between: (i) all contracted-for Rent and other sums that would be payable under this Lease from the date of default, for the remainder of the then-unexpired Term in the absence of termination; and (ii) Tenant’s obligation to pay rent pursuant to this lease over the same period. Nothing herein shall be construed to affect or prejudice Landlord’s right to claim and recover in full, unpaid rent and any other amounts accrued prior to termination of this Lease.
| 14 |
| 17.3. | Default by Landlord. In the event of any claimed default on the part of Landlord, Tenant shall deliver written notice to Landlord detailing such claim and Landlord shall have thirty (30) calendar days in which to commence to cure such claimed default. Notice to Landlord of any such default shall also delivered to any lender under a Deed of Trust affecting the Building, provided that Tenant has first been notified (by way of Assignment of Rents or Subordination, Non- Disturbance and Attornment Agreement, or otherwise) of the name and address of such lender. Tenant further agrees that if Landlord shall fail to commence to cure such default within thirty days, then such lender shall have an additional reasonable time in which to commence cure, provided that appropriate cure is commenced and pursued with reasonable diligence. In no event will Landlord or any lender be responsible for any consequential damages claimed by Tenant as a result of any claimed Landlord default, including, but not limited to, lost profits or business interruption. | |
| 18. | Subordination. | |
| 18.1. | Subordination Instrument. This Lease is subject and subordinate to the lien of any and all mortgages (including deeds of trust and similar security instruments) that may now or hereafter encumber the Building, as well as any and all renewals, extensions, modifications, or refinancings thereof; provided, however, that if the lender under any such security instrument shall require this Lease to be superior and paramount to such instrument, then Tenant agrees to promptly execute, acknowledge and deliver, if requested by Landlord or any such lender, customary and reasonable subordination, non-disturbance and attornment instruments. | |
| 18.2. | Attornment. Tenant agrees that, if any proceedings are brought for the foreclosure of any security instrument encumbering the Building, then Tenant, if requested to do so by the purchaser at the foreclosure sale, shall recognize such purchaser as Landlord under this Lease, and shall make all payments required hereunder to such new landlord without deduction or set-off; provided, however, that such new landlord shall execute and deliver to Tenant a non-disturbance agreement with respect to Tenant’s occupancy of the Premises. | |
| 18.3. | Lender Required Amendments to this Lease. If, in connection with obtaining temporary, construction or permanent financing for the Building, any lender shall request reasonable modifications of this Lease as a condition to such financing, Tenant agrees that it shall not unreasonably withhold, delay or defer the execution of minor amendments or modifications of this Lease; provided that such modifications shall not increase the financial obligations of Tenant hereunder, nor increase tenant’s performance obligations, nor materially or adversely affect Tenant’s rights hereunder or interfere with Tenant’s use and enjoyment of the Premises. | |
| 19. | Estoppel Certificate. | |
| 19.1. | Tenant shall, without charge, at any time and from time to time, within ten (10) calendar days after Landlord’s request, execute and deliver a written estoppel certificate certifying, as of the date of such certificate, the following: (a) whether or not this Lease is unmodified and in full force and effect (or if modified, that the Lease is in full force and effect as modified and setting forth such modifications); (b) whether or not the Term has commenced and the status of any Renewal Term; (c) the amount of Base Rent Installments currently due and payable by Tenant; (d) that no Base Rent Installments have been paid more than thirty (30) days in advance; (e) whether or not Tenant is in possession of the Premises and is currently operating its business therein; (f) that Tenant has no knowledge of any uncured defaults by Landlord or Tenant under this Lease (or, if Tenant has such knowledge, specifying the same in detail); (g) the address to which notices to Tenant should be sent; and (h) any other information reasonably requested by Landlord. | |
| 20. | Landlord’s Entry. During the Term, Landlord may enter the Premises after giving 24 hours notice at reasonable hours for any reasonable purpose (and within the last twelve (12) months of the Term, to exhibit the Premises to prospective purchasers, lenders or tenants), to inspect the Premises to verify that Tenant is complying with all obligations hereunder, to make repairs, alterations or improvements to the Premises or other space in or on the Building, if such entry in the Premises is necessary therefor, to install or service Building systems, to perform janitorial or maintenance services, and to post such notices as Landlord may reasonably require to protect its rights. Landlord and its representatives shall have the authority to take such materials and equipment onto the Premises as may be necessary for accomplishing the purposes set forth in this Section. In the event of an emergency, Landlord shall have access to the Premises at any time without notice. |
| 15 |
| 21. | Hazardous Materials. | |
| 21.1. | Definition. “Hazardous Materials” means any and all pollutants, contaminants, toxic or hazardous wastes, or other similar substances the removal of which is required, or the presence, use, or volume of which is regulated, restricted, prohibited or penalized by any “Environmental Law,” which term shall mean any federal, state or local law or regulation issued by a governmental authority related to land, water or air pollution or protecting the environment. | |
| 21.2. | No Hazardous Materials. Landlord represents that it presently has no actual notice or specific knowledge about the presence of any Hazardous Materials in the Premises that may violate any Environmental Law. Tenant shall not use, generate, dispose, store or transport any Hazardous Materials in the Building, Premises, or Common Areas, such as may violate any Environmental Law, and in the event that such laws, rules or regulations require Tenant to remove or otherwise remedy the existence of any such Hazardous Materials associated with the Premises (except for existing base Building improvements and systems), then Tenant agrees to remove or remedy such condition at Tenant’s sole expense. In that event, Tenant further agrees to fully indemnify, defend, and save Landlord harmless from and against any loss, claim, damage, cost and/or liability related thereto, and further, Tenant shall cause its contractors to certify that no such violation has or shall occur in connection with the installation of any Alterations. |
| 22. | Miscellaneous Provisions. | |
| 22.1. | Landlord Assignment. Landlord may freely sell, assign or otherwise transfer all or any portion of its interest under this Lease or in the Premises or Building, and in the event of any such transfer, the party originally executing this Lease as Landlord shall be relieved of any and all Landlord obligations under this Lease from and after the date of such transfer. Tenant shall thereafter attorn to the transferee as Landlord with the same effect as though such transferee had been the original Landlord, provided that the transferee assumes and agrees to carry out all the obligations of Landlord under this Lease. | |
| 22.2. | Notices. All notices shall be personally delivered or sent by recognized overnight courier or by certified mail, return receipt requested, postage prepaid. All notices to the respective parties shall be addressed as follows: |
| If to Landlord: | Westland Development Services, Inc. | |
| Attn: Peter Aweida, President | ||
| 1644 Conestoga Street, Suite 7 | ||
| Boulder, Colorado 80301 | ||
| If to Tenant: | To Tenant at the Premises | |
| and a copy to: | Sonoma Pharmaceuticals, Inc. | |
| Chief Financial Officer | ||
| 645 Molly Lane, Suite 150 | ||
| Woodstock, Georgia 30189 |
Either party may, by like written notice, designate a new address or recipient to which such notices shall be directed.
| 22.3. | No Waiver. All rights and remedies set forth herein are separate, distinct and cumulative. No failure by a party to exercise any right, and no custom, practice, or course of dealing of the parties at variance with the terms hereof shall constitute a waiver of such party’s right to demand exact compliance with the terms hereof. Receipt by Landlord of any Rent or other amounts payable hereunder with knowledge of an Event of Default, or acceptance by Landlord of partial payments or partial performance, shall not constitute a waiver or release of any such Event of Default. No waiver by a party of any provision hereof shall be valid unless written, and a waiver so given once shall not be deemed a waiver for any subsequent occasion. |
| 16 |
| 22.4. | Governing Law. This Lease shall be governed by and construed pursuant to the laws of Colorado. Any action or proceeding arising from or related to this Lease shall be brought only in the District Court, County of Boulder, State of Colorado. In the event of any litigation or proceeding between the parties relating to this Lease or the Premises, the prevailing party shall be awarded all reasonable attorneys’ fees, costs and expenses. The parties each hereby waive and release all rights to a trial by jury in any claim, action, proceeding or counterclaim arising out of or in any way connected with this Lease or the Premises. | |
| 22.5. | Successors. All of the covenants, agreements, terms, conditions, provisions and undertakings in this Lease shall inure to the benefit of, and shall extend to and be binding upon, the parties hereto and their respective legal representatives, successors and assigns, subject to the provisions of this Lease restricting assignment and subletting. | |
| 22.6. | Severability. If any term, covenant or condition of this Lease shall to any extent be held invalid or unenforceable, then the remainder of this Lease shall not be affected and each remaining term, covenant or condition shall be enforced to the fullest extent permitted by law. | |
| 22.7. | No Recording. Neither this Lease nor any memorandum hereof shall be recorded. | |
| 22.8. | No Brokers. Landlord and Tenant each represent that they had no dealings with any real estate broker, agent, or other finder with respect to this Lease except: Gregory Glass of Gibbons White, Inc. | |
| 22.9. | Tenant Representations. Each individual executing this Lease on behalf of Tenant hereby represents and warrants that: (a) he or she is duly authorized to execute and deliver this Lease; (b) Tenant is duly organized, is qualified to do business in the State of Colorado, is in good standing under the laws of the State of Colorado, has the power and authority and has obtained all necessary consents to enter into and perform this Lease; and (c) all action required to authorize Tenant to enter into this Lease has been duly taken, and that this Lease is the legally binding obligation of Tenant according to its terms. | |
| 22.10. | Complete Agreement. This Lease, including all Exhibits, is intended by the parties as the final expression of their agreement for the Premises and as a complete and exclusive statement of the terms thereof. All negotiations, considerations and representations between the parties are incorporated and no discussions or course of prior dealings between the parties or their affiliates shall be relevant or admissible to determine the meaning of any terms of this Lease. No representations, understandings or agreements have been made or relied upon in making this Lease other than those specifically set forth herein. This Lease can only be modified by a writing signed by all of the parties hereto. | |
| 22.11. | Name of the Building. Subject to Tenant’s rights of quiet enjoyment as set forth elsewhere herein, Landlord shall have the right at any time to change the name of the Building, to increase the size of the Building by adding additional real property thereto, to construct other buildings or improvements on any portion of the existing Building, or to change the character of or to make alterations of or additions to the Building; however, Landlord covenants that the quality of the Building shall remain substantially similar to its quality on the date of this Lease (normal wear and tear excepted). In the event any such additional buildings are constructed or Landlord increases the size of the Building, Tenant acknowledges that such construction may cause occasional noise and temporary interference. In the event of new construction affecting the Building, Landlord and Tenant shall execute an amendment to this Lease which incorporates any necessary modifications, additions, and adjustments to Tenant’s Pro Rata Share. Tenant shall not use the Building’s name for any purpose other than as part of its business address. |
| 17 |
In Witness, the parties hereto have executed this Lease effective on the date written above.
| Landlord: | Tenant: |
|---|---|
| WESTLAND DEVELOPMENT SERVICES, INC. | Sonoma Pharmaceuticals, Inc. |
| By: /s/ Peter A. Aweida | By: /s/ Amy Trombly |
| Peter A. Aweida, as President | Amy Trombly, as CEO |
| Date: 2/22/2021 | Date: 2/22/2021 |
| 18 |
Exhibit A
The Premises

| 19 |